Between 24 November and 21 December 2025 feedback is invited on plans for a new community and recreation facility at the Western Youth Centre site at Cowandilla.

The current Western Youth Centre dates back to before 1935, and is operating near capacity. WYC Inc., a volunteer-led non-profit organisation with more than 500 members, has operated the centre since 1956, and currently holds both a lease and a Partnership Agreement that support the delivery of community recreation services.

Council is proposing a $15 million replacement facility, funded 50/50 between Council and the Federal Government’s Thriving Suburbs Fund.

The concept plans for the replacement facility have been developed in close partnership with the WYC Inc. Board of Management, with current member clubs actively involved to ensure the design meets both current and future needs. Council will work with WYC Inc. to maintain broad and equitable community access to the new facility.

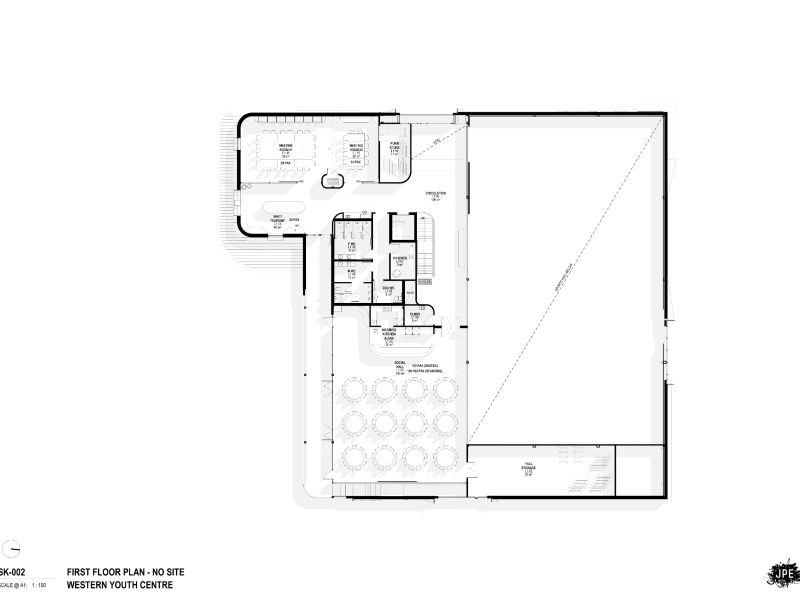
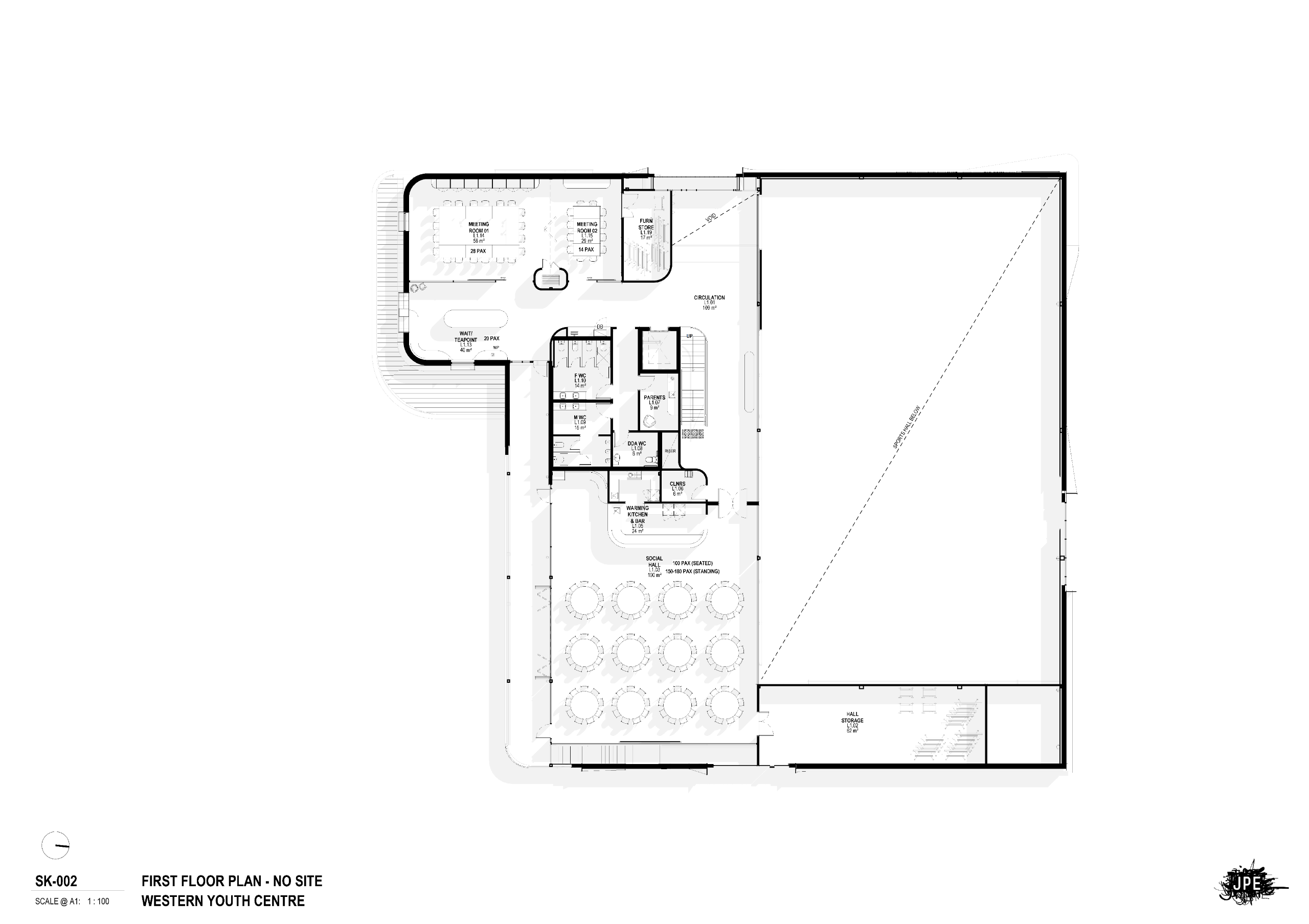
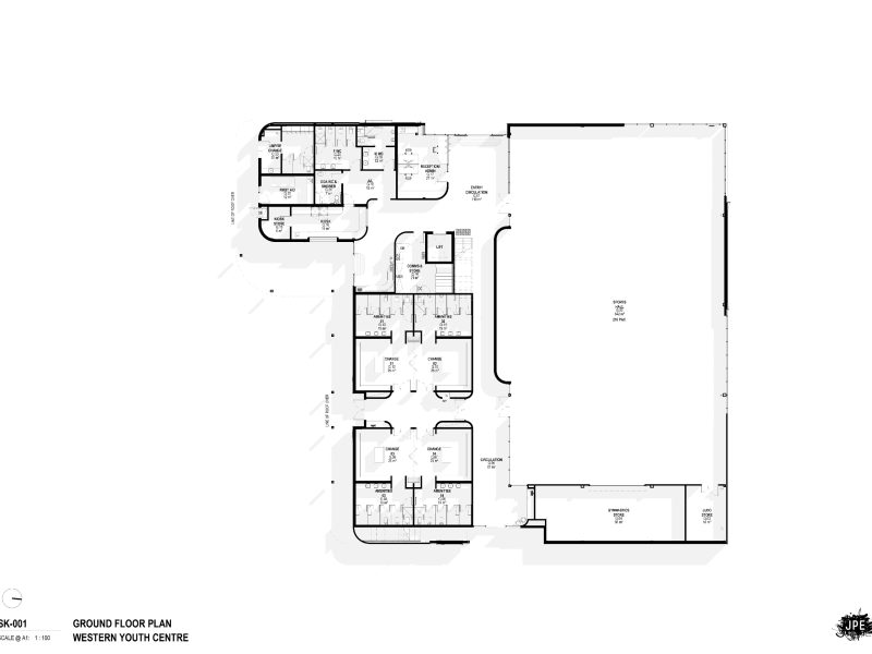
The new design provides flexible, modern and accessible spaces to support the wide range of programs currently offered by WYC Inc. including gymnastics, judo, cricket, soccer, tennis, Kindergym, table tennis, calisthenics, dog obedience, marching, angling, community meetings and more. These expanded spaces will allow existing clubs to grow and create opportunities for additional programs and services.

Construction is planned north of the current building so that the Western Youth Centre can continue operating throughout the build.

You are invited to view the concept plans on this page, attend the community drop in session on Thursday 4 December, and share your feedback by either:

  • Completing the online feedback form, or
  • Providing a written submission via email to info@wtcc.sa.gov.au or post to 165 Sir Donald Bradman Drive, Hilton 5033.

Open for feedback until Sunday 21 December 2025.